
2022-03-13 沈陽消防公司
一、消防水滅火系統
嵌入式消火栓箱安裝施工技術
1消火栓立管和消火栓位置優化
將安裝施工圖與建筑圖重疊,優化消火栓管道和箱盒的位置;安裝專業將優化的消防栓箱位置及預留洞的標高和尺寸向土建專業進行交底。
2消火栓箱預留孔和立管預留孔
土建按交底要求預留洞口,消火栓箱洞口上方設置預制鋼筋混凝土過梁。
3消火栓主管安裝
安裝立管支架吊線;修整傾斜的隔水管孔;安裝消火栓的立管和套管(消火栓管道應采用熱鍍鋅鋼管)。
4.消火栓箱和消火栓支管的定位和安裝
結合裝飾面層的具體情況,確定消火栓箱的墻面尺寸;掛線安裝時,要保證墻體部分順直,無尺寸。
5水壓試驗
水壓試驗必須符合設計要求。當設計無規定時,管道系統的試驗壓力為工作壓力的1.5倍,但不小于0.6MPa
6箱內孔的密封和水槍軟管的配置
系統試壓完成后,將消防栓箱上的孔洞堵上,并按要求配置水槍的水帶。
質量控制要點
1.消火栓箱的安裝高度應保證滅火栓安裝完成后,栓口中心距建筑物完成面1.1m
2.插頭插座的出線方向應朝下或與設置滅火插頭的墻面成90度角(薄壁盒內應設置可旋轉的插頭頭);
3.消火栓箱墻面尺寸統一,箱體安裝平直;
4.箱體上的孔洞封口整齊美觀。
消防環網安裝施工技術
1管網的繪制、重疊繪制和深化
將水、電、風的建筑、裝修、安裝施工圖進行合并、重疊,深化管網圖,充分避免消防管道與橋架、風管的打架以及與建筑構件、裝修造型的沖突。
2放線及支撐(扶壁)安裝
根據深化定位圖現場放線,按要求安裝支架和支墩(DN100管道支架與支墩距離≯4.5m,DN125管道支架與支墩距離≯6m,DN150管道支架與支墩距離≯7m)。
3管道和閥門安裝
消防管道和閥門應根據支架的定位位置進行安裝(閥門的安裝位置應通過支架進行加固)。
4系統水壓試驗
對管網進行水壓試驗(水壓試驗必須滿足設計要求,當設計無規定時,管道系統的試驗壓力為工作壓力的1.5倍,但不小于0.6MPa)。
5.管道面漆、標記噴涂
用面漆和面漆噴涂管道和支架(注意與施工、裝飾膩子、涂料等工序相互穿插,避免交叉污染)。
質量控制要點
1.深化管網一定要充分考慮建筑凈高的要求,特別要注意風管、橋架、防火幕的位置(車庫要求:車位>2m,車道>2.2m);
2.水壓試驗必須嚴格按照設計和規范要求進行,并采取安全措施;
3.橡膠軟接頭(波紋補償器)在伸縮縫位置的安裝方法一定要正確,保證膨脹變形只在橡膠軟接頭位置。
消防泵及輔助管道安裝施工技術
1泵房的綜合布置
消防泵房施工前,應根據設計圖紙和水泵型號對泵房進行綜合布置,合理進行水電分區,確定水泵和報警閥的位置,優化泵房的水電管線。
2消防水池澆筑
準確預留與消防水池相關的孔洞(水泵入口、水池入口、回水、放空、溢流、旁通、液位計、人孔等。)和檢修梯子按詳圖的位置。
3泵基礎鑄件
泵房底板施工前,應根據綜合布置圖澆筑泵基礎,并根據泵的型號預留地腳螺栓或地腳螺栓孔。
4水泵安裝和管道安裝
水泵的找正、找平、定位及安裝,水泵進出水管及相關閥門的安裝(閥組支架及支撐必須固定牢固)。
5管網壓力試驗和水泵調試
系統安裝好后,先關閉水泵出口的閥門,測試管網壓力;試壓合格后,進行管網沖洗,水泵單機試壓。
質量控制要點
1.基礎高度的確定,必須保證泵入口閥組的安裝空間;
2.偏心頭和進水口小頭的安裝必須平整,避免水泵氣蝕損壞;
3.泵墊安裝有效(確保墊外露);
4.橡膠軟接頭的安裝保證了水泵的振動能被有效吸收,防止傳遞到泵后的管網。
二、煙氣控制系統
建筑風道(煙道)安裝施工技術
1質量交底和模型制定
對施工隊伍進行現場交底,制定樣板,明確豎井砌筑和豎井抹灰的質量要求。
2豎井砌筑和抹灰
根據樣板要求,豎井砌體應同時抹灰,抹灰質量應滿足室內抹灰平整度的要求。
3孔修理和空氣閥孔的關閉
修補風井孔,關閉風閥和百葉窗預留孔周圍的孔。
質量控制要點
1、抹灰平整度按室內標準要求(保證樓梯間與走道壓差40~ 50 Pa,前室與走道壓差25~ 30pa);
2.風閥、百葉預留孔關閉,滿足風閥、百葉可直接安裝的條件,不需要進一步關閉。
屋頂消防風機安裝施工技術
1基礎尺寸和位置的確定
合風機規格、風井位置、屋頂建筑結構的具體位置來布置風機基礎位置。
2防雷接地端子預留及基礎澆筑
在屋頂澆筑混凝土時,將防雷接地端子預留到風機基礎位置。澆筑頂板結構面后,準確定位風機基礎位置,澆筑風機基礎。
3建筑屋面和基礎面施工
屋面防水、保溫層、找平層、剛性層施工時,注意防水必須翻至風機基礎邊緣,以保證防水系統的嚴密性;抹灰或鋪設風機的基礎表面。
4風扇和附件的安裝
根據風井位置,校正風機位置,準確定位風機;安裝減震墊,固定風扇;安裝防鼠網,安裝連接風道,對風機金屬外殼做防雷接地處理。
5風機雨篷及防護措施安裝
安裝風機遮陽篷和防護措施,完善可靠的防雷和接地措施。
質量控制要點
1.風機的基礎必須從結構面預留(并配合預留防雷接地端子);
2.風機阻尼墊不得被基礎表層覆蓋,以保證有效的阻尼措施;
3.風機、雨篷及金屬部分的保護措施必須可靠防雷接地。

三、火災自動報警設備的安裝施工技術
1點綜合布置
根據系統功能,優化報警控制器、火災探測器、手動報警器、聲光報警器、各種模塊等設備的位置,確定布線路線和布線方式。
2.預留預埋保護管和線槽安裝
根據優化后的設備定位位置,敷設線管、預留線盒、穿線管(明管彎曲半徑≥6D,暗配管彎曲半徑≥10d);金屬線槽安裝支架間距≤1.5m,必須使用專用開孔器開安裝孔,不得使用電氣焊開孔;保護管和金屬槽的跨接線的截面積不小于4mm2。
3.放線和設備安裝
根據保護管和線槽確定的路線進行放線。放線時應考慮不同系統、不同電壓、不同電流類別的線路,不得穿在同一管內或同槽線槽內;設備安裝應嚴格按照優化后的定位圖進行(設備在裝修區域的定位應與裝修要求共同確定)。
4.系統調試和驗收
火災自動報警系統的調試應在建筑物內部裝修和系統施工后進行;首先,消防設備應進行單機調試。單機調試合格后,按照建筑工程消防設施驗收的具體要求進行聯動調試,逐項檢查設備功能。自檢合格后,按要求提交檢測單位檢測驗收。
質量控制要點
1.配管前,根據設備型號,選擇與設備相匹配的箱體;
2.裝修施工前,消防單位應當配合裝修單位制定裝修區域的施工模型,準確界定設備點的位置;
3.設備定位必須與裝修溝通確定,人工報告、插孔電話、消防電話電話為1.3~ 1.5m;聲光報警:離地1.8m
4.設備安裝必須在裝飾膩子和裝飾面漆完成后進行,避免二次污染。
四、疏散指示、安全出口的安裝和施工技術
1.檢查疏散路線和設備定位。
根據建筑的功能要求檢查疏散路線(確定不同方向的設備數量),優化疏散指示和出口位置,并指定安裝方式(明裝或暗裝,墻裝或地裝或吊裝)。
2.線管預埋及安裝位置預留
根據優化圖的定位位置,準確預留接線盒位置并預埋保護管(隱蔽疏散指示和安全出口處預留安裝底盒),預埋后及時疏通管道并穿引絲。
3.放線和設備安裝
安裝完裝飾吊頂龍骨后,及時放線。放線時,接線盒或底盒處必須留有適當余量,并保證良好的絕緣保護。建筑、裝修膩子、涂料施工完畢后,應及時進行疏散指示和安全出口安裝(疏散指示標志走道墻安裝距離不宜大于20m)。
4.系統調試
消防系統安裝完成后,應對疏散指示和安全出口進行調試(正常交流電源切斷后,疏散指示和安全出口應平穩切換至應急工作狀態,切換時間不超過5s)。
質量控制要點
1.原則上要求疏散指示隱蔽。有什么困難,就要走出表面背后的那條線。
2.疏散指示墻底邊距地面400~ 500cm;
3.安全出口吊裝應保證底邊距地面的距離為2.2~2.5m,吊裝應保證鋪設路線橫平豎直、美觀;
4.設備安裝完成后,必須對成本產品進行保護,以免損壞。
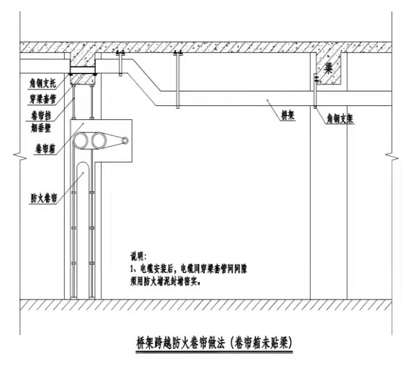
5.防火卷簾部位水電管道安裝施工技術
1繪圖和優化
在涉及部分的結構施工前,做好該部分的安裝圖和建筑、結構圖的聯繪圖,優化該部分的水電管線,或移位或作為梁上的管線處理,避免水電管線穿越防火卷簾。
2保留和嵌入
結構施工時,根據圖紙位置準確預留管套和電線電纜保護管。
3管道安裝
嚴格按照優化后的施工圖安裝水電管線,并注意預留防火卷簾盒的安裝空間。
4孔堵塞
水管與套管之間按要求用石棉繩和石棉水泥密封,電纜電線與保護管之間用防火泥密封。
質量控制要點
1.結構施工前,要結合構圖進行水電圖的組合和優化;
2.防火卷簾盒的安裝空間必須充分預留。百葉箱的安裝間距應根據防火卷簾的高度確定,水平方向不應小于1m;
3.套管和保護管必須可靠封堵,以滿足防火性能要求。

六、防火門安裝施工工藝
1專業間疊圖
將建筑和安裝圖紙進行疊加,特別要檢查消火栓豎管和消火栓箱是否與防火門發生戰斗,根據戰斗情況提前優化消火栓位置或防火門開啟位置。
2門洞預留
根據優化后的開啟位置預留防火門開口。
3防火門安裝
防火門安裝必須放線(標高線和垂直線)。首先要將門框找正嚴格做到橫平豎直,然后安裝門扇和五金件。
4閉門器,順序器安裝
門扇五金件安裝完成后,安裝常閉式防火門關閉器和順序器,安裝常開式防火門釋放器和順序器。
5標志張貼
張貼消防產品標識信息標志、銘牌和證書。
質量控制要點
1.注意甲、乙、丙類防火門的使用位置;
2.確保防火門門扇與地板之間有5mm左右的間隙;
3.常開防火門應在火災報警并反饋信號后自動關閉;
4.防火門標志“三證齊全”。
陳經理:18640181195
